ШТУЦЕРНАЯ КАМЕРА ШК

Рис.1 Штуцерная камера ШК 80х14. Чертеж.
Рис.2 Штуцерная камера ШК 80х14. 3-D модель.
Штуцерная камера ШК редназначена для регулирования расхода жидкости при нефтедобыче и обеспечивает установление следующих возможных режимов работы скважины:
• вывод нефтяной скважины на рабочий режим;
• установление требуемого эксплуатационного режима работы скважины;
• проведение замеров для определения содержания газа в жидкости нефтяной скважины (определение газового фактора);
• установление необходимого расхода (по перепаду давления) при закачке жидкости в пласт в системе ПНД.
Штуцерная камера ШК предназначена для эксплуатации в климатических условиях УХЛ категории размещения 1 по
ГОСТ 15150-69.
Способ крепления штуцерной камеры на устьевой обвязке:
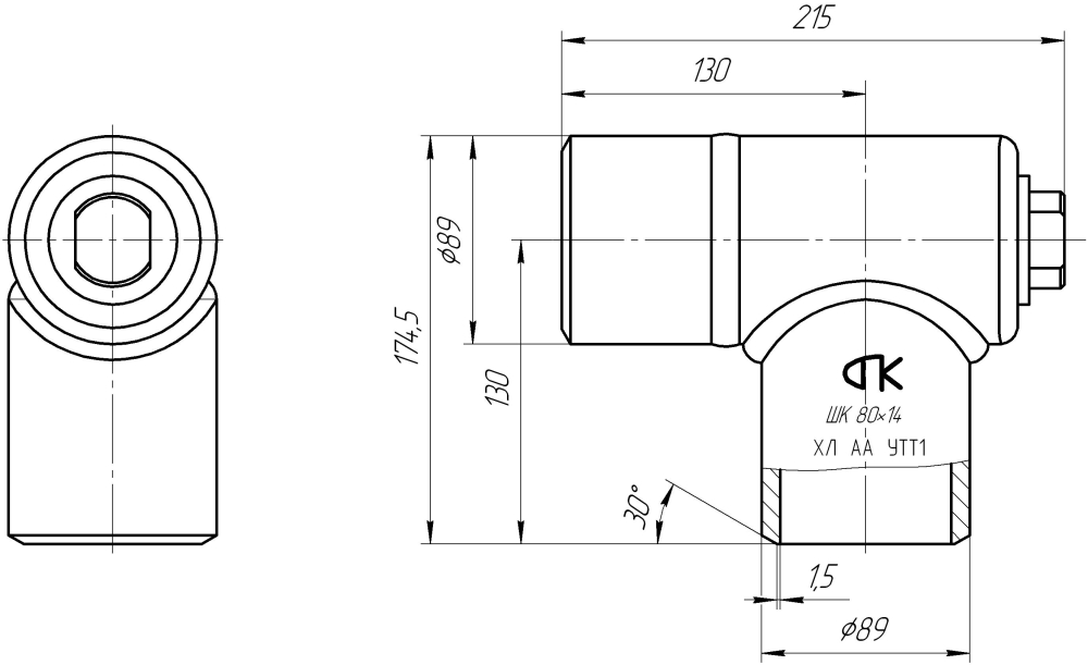
- ШК 100х14 (см. рис.3) – под приварку на трубы ф114 со стенкой 10, 12, 14 мм;
- ШК 80х14 (см. рис.1,2) - на на трубы ф89 мм.
Материал корпуса камеры – сталь 13ХФА (Сталь 20А, 20С).
Регулирование расхода жидкости осуществляется заменой штуцерных ввертышей, имеющих различный проходной диаметр. Для замены ввертыша необходимо остановить работу скважины, перекрыть линейной задвижкой доступ среды к камере и вывернуть трубку с установленным в неё ввертышем. Количество ввертышей в комплекте поставки и их номекнлатура устанавливается заказчиком.
Возможна комплектация камеры ввертышами с дросселями из керамики.
Рис.3 Штуцерная камера ШК 100х14. 3-D модель.
Технические данные ШК
|
Параметр |
Значение |
|
Рабочая среда |
Нефть и вода |
|
Рабочее давление, МПа |
20 |
|
Условный размер проходного отверстия ввертыша, мм |
1…20 – ряд целых чисел |
|
Управление штуцерной камерой |
Ручное путем замены ввертыша |
|
Рабочая температура окружающей среды |
От -60°С до +45°С |
|
Габаритные размеры ШК 80х14, мм |
274х207,5х114 |
|
Габаритные размеры ШК 100х14, мм |
215х174,5х 89 |
|
Масса ШК 80х14, кг |
8,0 |
|
Масса ШК 100х14, кг |
13,5 |
ООО «Научно-производственное предприятие Обуховская промышленная компания» специализируется на производстве широкого спектра нефтепромыслового оборудования. Многие годы мы поставляем высококачественную фонтанную арматуру ведущим российским и зарубежным компаниям. Штуцерные камеры(ШК) нашего производства пользуются постоянным спросом у нефтяных и газовых компаний.
Для заказа продукции звоните по телефонам:
+7 926 074 06 56, +7 (831) 295-50-58, +7 (831) 293-41-30,
Направляйте заявки по почте:






